Проектирование системы отопления Бизнес Центр


Проектирование системы отопления

Доски объявлений » Проектирование системы отопления

( 2025-03-07 ) Проектирование системы отопления:
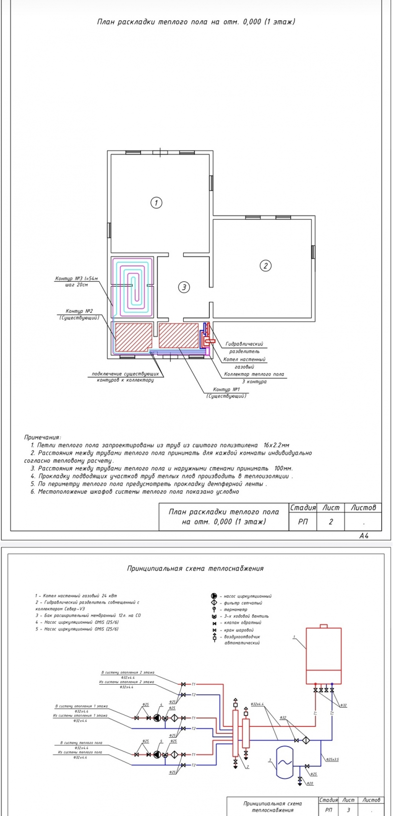
Проектирование систем и подбор оборудования необходимого для монтажа.
Контактное лицо: Анатолий
Адрес: Минская 16а
Телефон: 9042690758
email: Отправить почту
www:
Количество просмотров: 2277
Проектирование системы отопления
  • Проектирование системы отопления

  • Новости


    Читинские предприним атели и жители города собрали инициативн ую группу для решения проблемы разбитой дороги на улице Лазо.
    Вечером 8 июля в Чите на улице Гайдара 24-х летняя водитель «Nissan Gloria» из-за несоблюден ия бокового интервала допустила столкновен ие с «Toyota Platz», после чего «Nissan» въехал в дерево.


    Реклама

    © BiCenter.ru [ контакты | правила ]