Две комнаты в 3-х комнатной квартире СЗАО Бизнес Центр


Две комнаты в 3-х комнатной квартире СЗАО

Доски объявлений » Две комнаты в 3-х комнатной квартире СЗАО

( 2023-04-07 ) Две комнаты в 3-х комнатной квартире СЗАО:
Для тех, кто хочет расшириться сначала до двух комнат с балконом и докупить третью комнату. Если вы с детишками, то две комнаты это спасение!
Трехкомнатная квартира в СЗАО. 2 этаж в 12 этажном блочном доме, год постройки 1970. Есть свой агент!
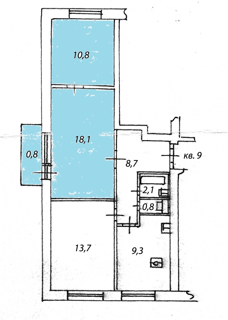
Общ площадь 64,3, жилая 42,6. Большая кухня 9.3 м., коридор 8.7 м., изолированная комната 13.7 и две смежные комнаты 18.1 м.(проходная), и 10.8 м (запроходная). Раздельный санузел 0.8 м., ванная 2.1 м. Балкон 0.8 м. в комнате 18.1 м.Требуется капремонт. Свободная продажа, отдельный лицевой счет, не доля! 
Новая станция метро "Народное Ополчение" в 4-х минутах ходьбы. В 2020 году сделан капремонт. Стеклопакеты 4 камерные.
Плюсы: 15 минут до центра Москвы, взрослые собственники, свободная продажа, квартира никогда не продавалась.
Цена: 9,900,000 руб.
Контактное лицо: Вероника
Адрес: г. Москва, ул. Мневники дом 10 корпус 3
Телефон: +79163468141
email: Отправить почту
www:
Количество просмотров: 3762
Две комнаты в 3-х комнатной квартире СЗАО
  • Две комнаты в 3-х комнатной квартире СЗАО

  • Новости


    Читинские предприним атели и жители города собрали инициативн ую группу для решения проблемы разбитой дороги на улице Лазо.
    Вечером 8 июля в Чите на улице Гайдара 24-х летняя водитель «Nissan Gloria» из-за несоблюден ия бокового интервала допустила столкновен ие с «Toyota Platz», после чего «Nissan» въехал в дерево.


    Реклама

    © BiCenter.ru [ контакты | правила ]